NEW HOMES IN OVERLAND PARK – BLUE VALLEY SCHOOLS
Home
FLOOR PLANS
AVAILABLE HOMES
Community Map
Community Info
Contact
Drive Here
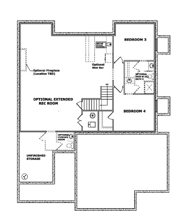
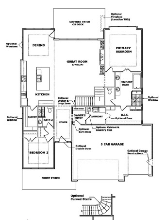
Windsor
Floor Plan Information
4 - 5 Beds
3 - 4 Baths
3212 - 3663 Sq.Ft.
3 Car Garage
Floor Plans
PHOTO Gallery
No items found.
No items found.
913-424-7449
MODEL HOME:
186
th
St. & Mission Rd.
Broker: Kent Welch
Agents: Liz Zimmerman & Jaimie Macoubrie